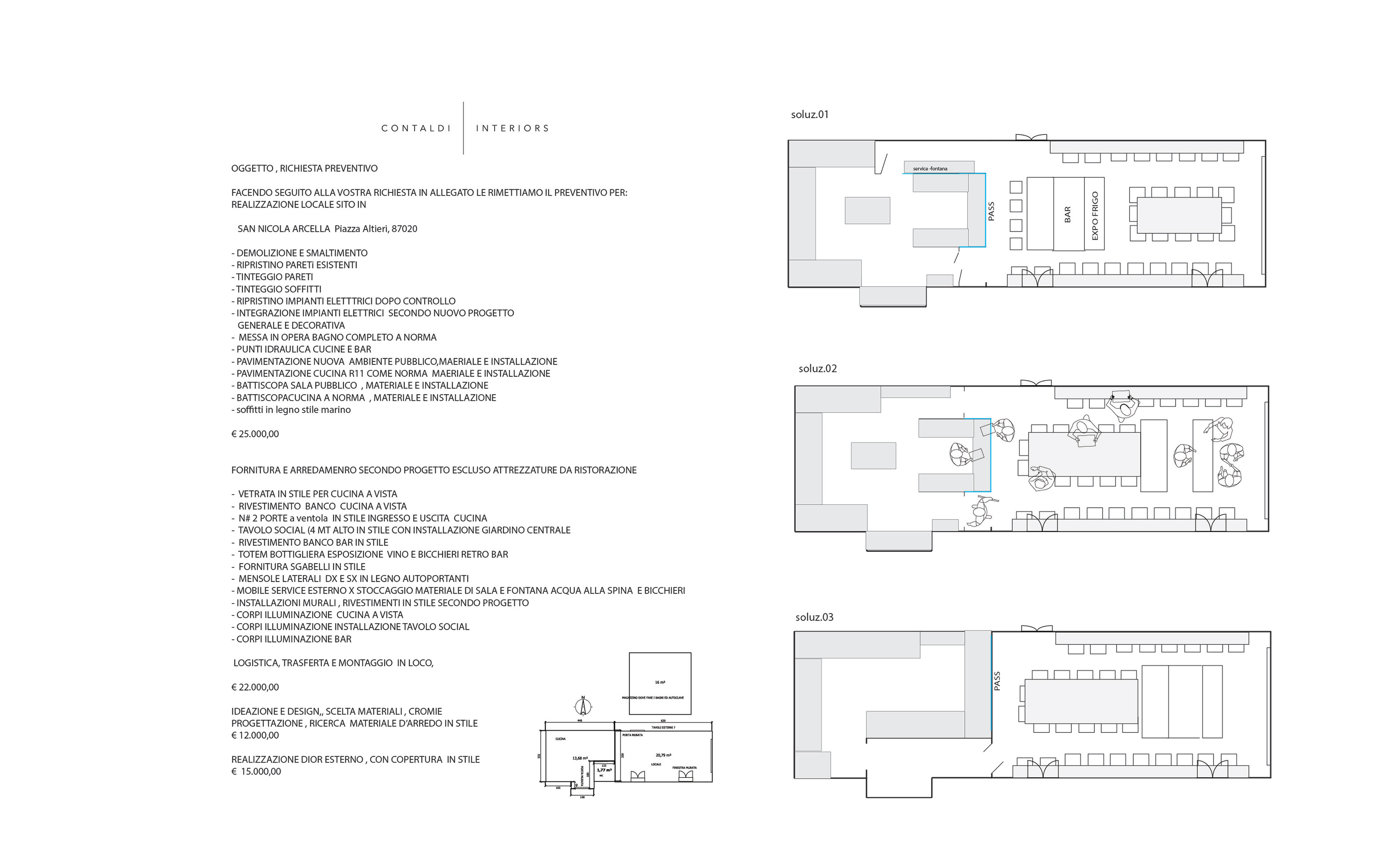
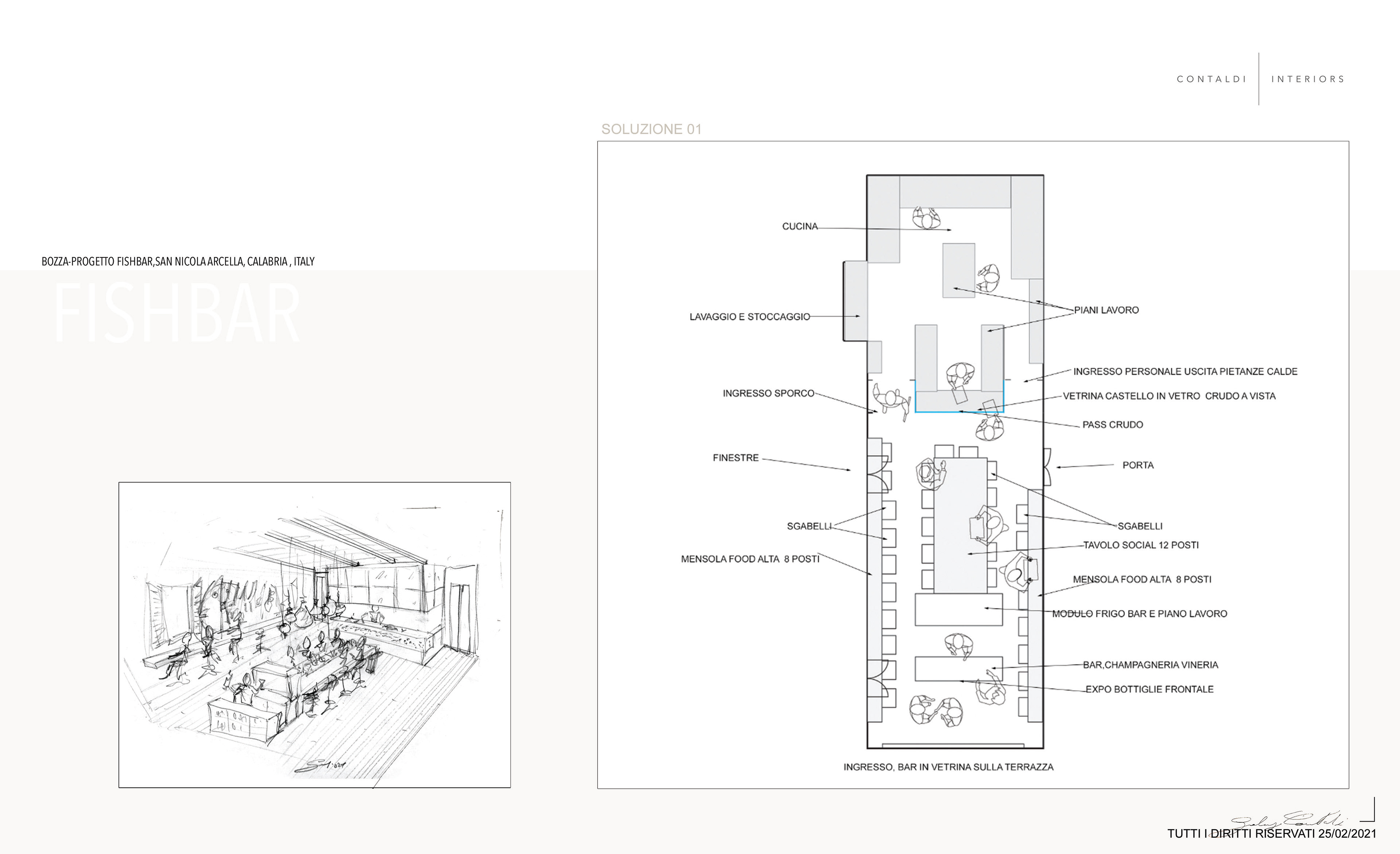
Gianluigi Contaldi
FISHBAR
CREATIVE